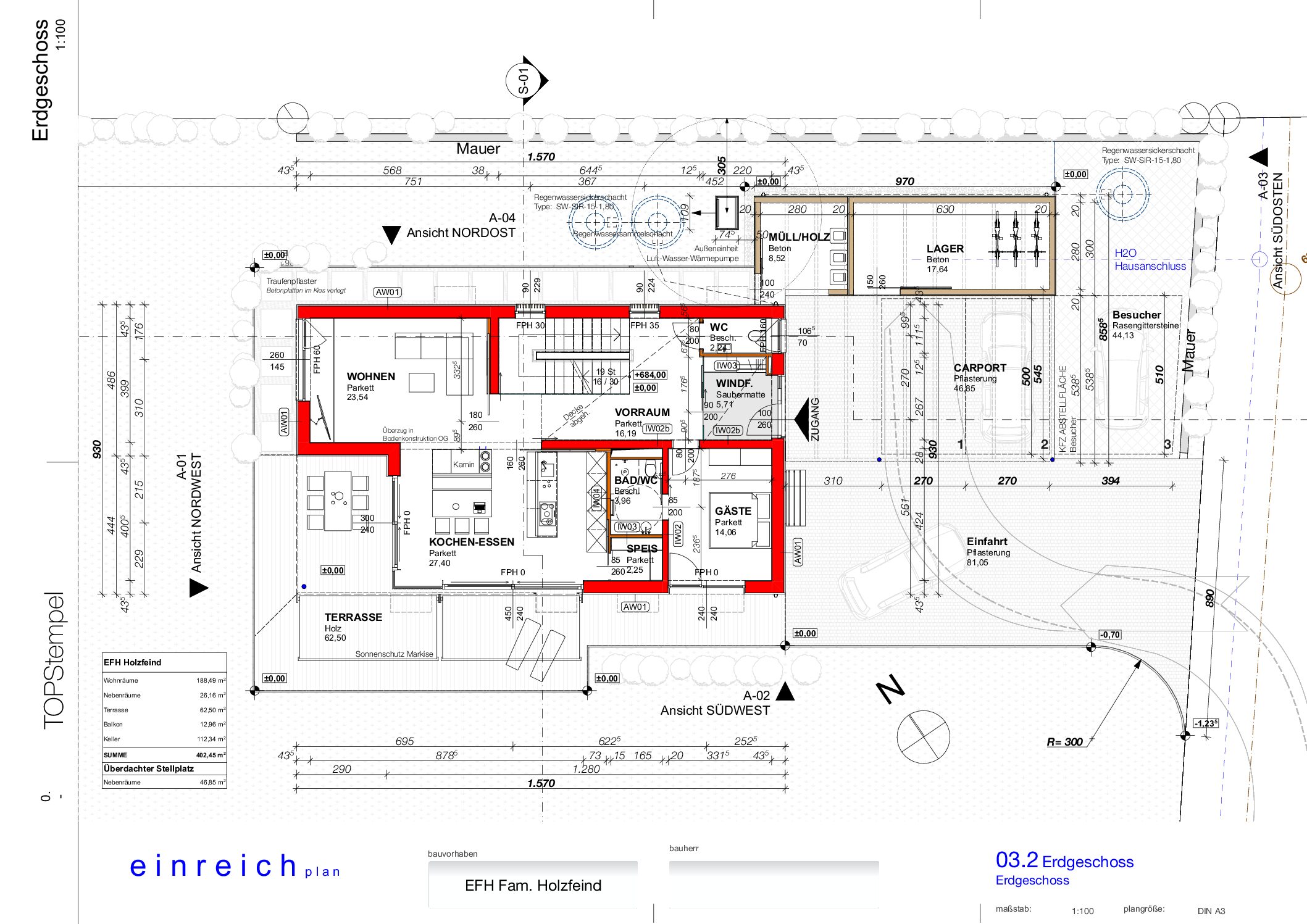
Die Aufgabenstellung war ein zweigeschossiges, unterkellertes Einfamilienhaus mit einer überdachten KFZ-Abstellfläche und einem Nebengebäude zu realisieren. Die Bebauung erfolgt in offener Bauweise. Als Dachform wurde ein Satteldach mit einer Dachneigung von 30° gewählt. Die Abmessungen des Gebäudes betragen 15,70 x 9,30 Meter. Das Erdgeschossniveau wurde mit +684,00 m.ü.A. projektiert. Der Zugang und die Zufahrt erfolgen über die im Südosten gelegene Anbindung an die öffentliche Verkehrsfläche. Der Geräteraum und die überdachte KFZ-Abstellfläche werden nordostseitig an das Haus angebunden. Südseitig ist eine Terrasse vorgelagert. Die Terrasse und Teile des Wohnbereiches werden mit zwei Markisen beschattet. Das Wohnhaus soll in Ziegelbauweise errichtet werden. Der Keller und sämtliche vertikal tragenden Bauteile (Decken usw.) werden in Stahlbeton errichtet.
Zur äußeren Erscheinung: Putzfassade im Erdgeschoss – Holzfassade im Obergeschoss.
Das Gebäude wird im Erdgeschoss barrierefrei gestaltet







