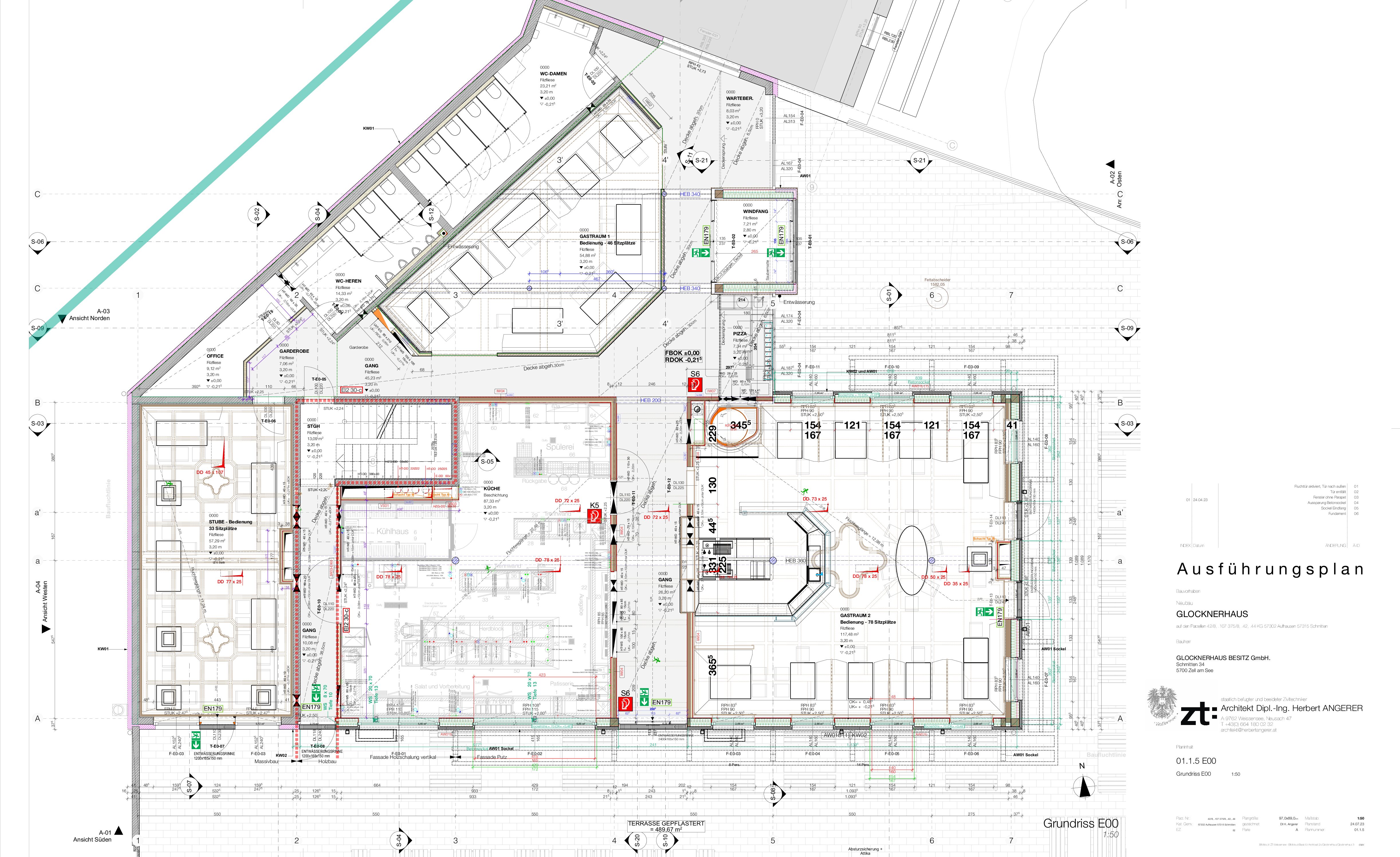
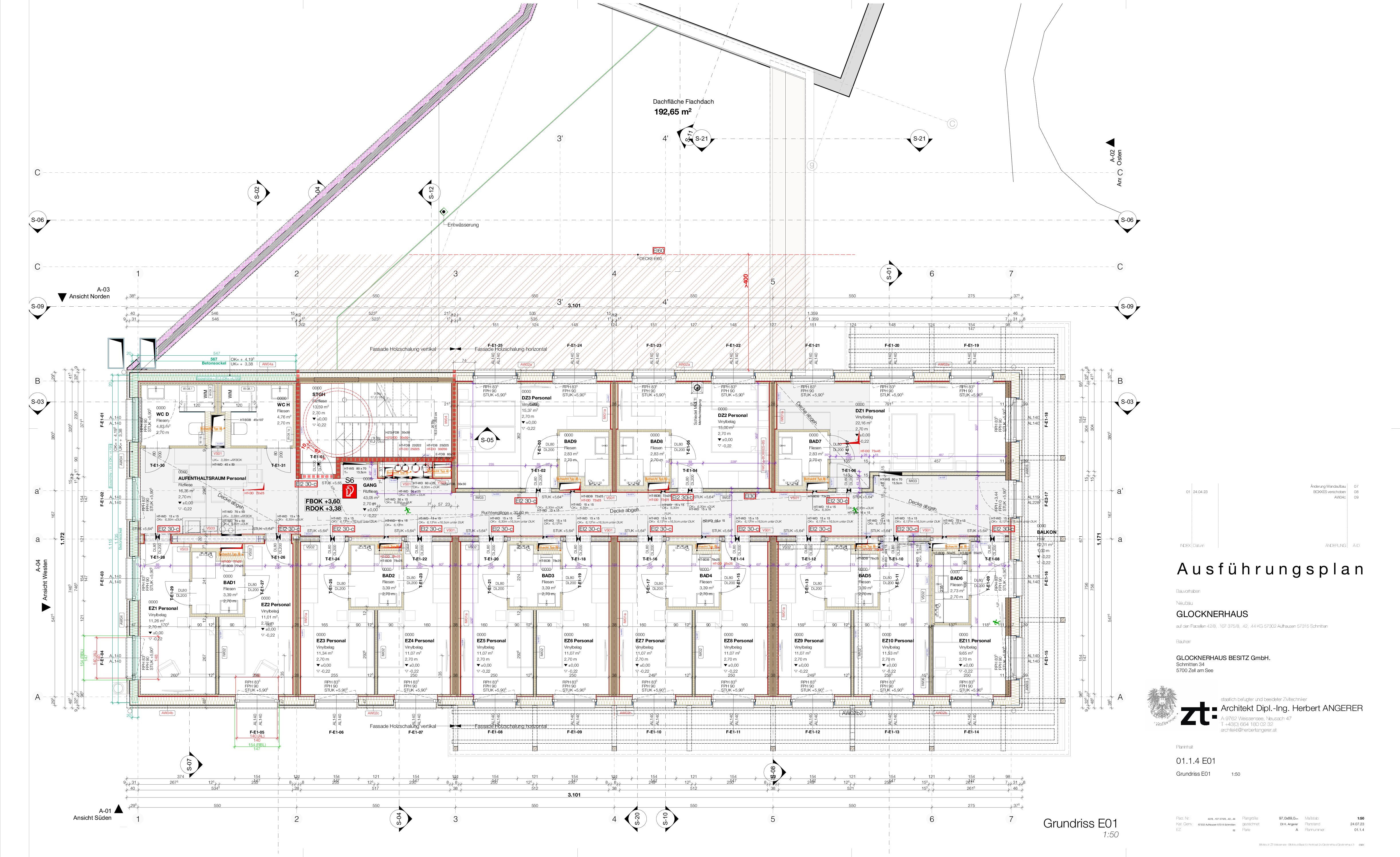
Skihütte Schmittenhöhe – Systembau und Geschwindigkeit
Neubau einer Skihütte in hochalpiner Lage auf 1.583 m Seehöhe.
Das Projekt zeichnet sich durch eine kurze Planungs- und Bauzeit sowie eine konsequente Umsetzung im vorgefertigten Holzsystembau aus.
Konzept
Die Planung folgt dem Prinzip der Vorfertigung und Montageeffizienz.
Ziel ist eine präzise, witterungsunabhängige Umsetzung unter anspruchsvollen alpinen Rahmenbedingungen.
Konstruktion
Das Gebäude wird in Holzsystembauweise realisiert.
Vorgefertigte Wand-, Decken- und Dachelemente ermöglichen eine schnelle Montage vor Ort bei gleichzeitig hoher Ausführungsqualität.
Vorfabrizierte Badmodule ergänzen das System und reduzieren Schnittstellen sowie Bauzeit zusätzlich.
Bauprozess
Durch den hohen Vorfertigungsgrad kann die Bauzeit vor Ort deutlich verkürzt werden.
Die Logistik und Montage werden gezielt auf die erschwerte Erreichbarkeit und die klimatischen Bedingungen abgestimmt.
Organisation
Ein abgestimmtes Zusammenspiel von Architektur, Tragwerksplanung, Bauleitung und Holzbau ermöglicht einen effizienten und reibungslosen Projektablauf.
Qualität
Die Holzbauweise bietet ökologische Vorteile, ein geringes Eigengewicht und ein angenehmes Raumklima.
Das Gebäude ist auf die Anforderungen der Höhenlage abgestimmt und verbindet Funktionalität mit nachhaltiger Bauweise.
Bauherr: Günther Wienerroither
Standort: Zell am See – Schmittenhöhe
Projektgröße: NGF ca. 1.000 m² oberirdisch
Fertigstellung: 2023
Leistungen: Ausführungsplanung
Neubau einer Skihütte in hochalpiner Lage auf 1.583 m Seehöhe.
Das Projekt zeichnet sich durch eine kurze Planungs- und Bauzeit sowie eine konsequente Umsetzung im vorgefertigten Holzsystembau aus.
Konzept
Die Planung folgt dem Prinzip der Vorfertigung und Montageeffizienz.
Ziel ist eine präzise, witterungsunabhängige Umsetzung unter anspruchsvollen alpinen Rahmenbedingungen.
Konstruktion
Das Gebäude wird in Holzsystembauweise realisiert.
Vorgefertigte Wand-, Decken- und Dachelemente ermöglichen eine schnelle Montage vor Ort bei gleichzeitig hoher Ausführungsqualität.
Vorfabrizierte Badmodule ergänzen das System und reduzieren Schnittstellen sowie Bauzeit zusätzlich.
Bauprozess
Durch den hohen Vorfertigungsgrad kann die Bauzeit vor Ort deutlich verkürzt werden.
Die Logistik und Montage werden gezielt auf die erschwerte Erreichbarkeit und die klimatischen Bedingungen abgestimmt.
Organisation
Ein abgestimmtes Zusammenspiel von Architektur, Tragwerksplanung, Bauleitung und Holzbau ermöglicht einen effizienten und reibungslosen Projektablauf.
Qualität
Die Holzbauweise bietet ökologische Vorteile, ein geringes Eigengewicht und ein angenehmes Raumklima.
Das Gebäude ist auf die Anforderungen der Höhenlage abgestimmt und verbindet Funktionalität mit nachhaltiger Bauweise.
Bauherr: Günther Wienerroither
Standort: Zell am See – Schmittenhöhe
Projektgröße: NGF ca. 1.000 m² oberirdisch
Fertigstellung: 2023
Leistungen: Ausführungsplanung








